Wunderschöne renovierte 4.5 Zimmerwohnung mit Terrasse in Brent / Montreux
Stock der Eigentumswohnung "Les Murets" im charmanten Dorf Brent, die aus dem vollständigen Umbau eines alten Steingebäudes hervorgegangen ist. Diese wunderschöne 4,5-Zimmer-Wohnung verbindet auf elegante Weise das Flair des Alten mit modernem Komfort.
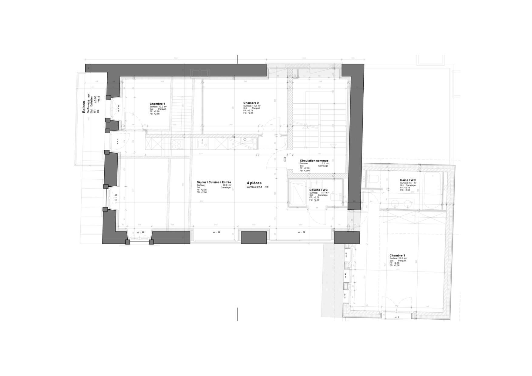
Mit einer Wohnfläche von ca. 97 m² bietet diese Immobilie großzügige Volumen und eine optimale Aufteilung. Sie besteht aus einem Eingangsbereich, einem geräumigen Wohn- und Esszimmer mit offener, voll ausgestatteter Küche, drei Schlafzimmern, darunter eine Master-Suite, sowie zwei Badezimmern (ein Duschbad/WC und ein Badezimmer/WC).
Die Wohnung profitiert außerdem von zwei besonders wertvollen Außenbereichen: einem Balkon von ca. 6,5 m² und einer privaten Terrasse von ca. 20,4 m². Diese Außenflächen verlängern die Wohnräume harmonisch und ermöglichen es, die grüne und friedliche Umgebung von Brent in vollen Zügen zu genießen.
Ein Außenparkplatz und ein Keller vervollständigen diese Immobilie.










































